Woonoppervlakte
Circa 59 m²
Inhoud
Circa 193 m³
Bouwjaar
Gebouwd in 1984
Aantal kamers
2 kamers (1 slaapkamer)

Dantestraat 276

1102 ZS, Amsterdam (Noord-Holland)

****Prefer English? – Scroll down!****
VZmakelaars biedt deze instapklare benedenwoning (ca60m2) met tuin (ca40m2) op het zonnige Westen aan! Centraal gelegen in de Venserpolder nabij de metro, met 15 minuten ben je in het centrum van Amsterdam!

* Energielabel B!
* Tennisbaan in de binnentuin
* Nabij metro

Zie jij jezelf al heerlijk in het zonnetje zitten in je eigen tuin? Kom dan eens een kijkje nemen bij deze verzorgde benedenwoning.

Voor de sportievelingen is er een leuk extraatje. In de binnentuin is er namelijk een tennisbaan, hoe luxe is dat!

De ligging is ideaal. Het is dichtbij de Arena en de Ziggo Dome. Je loopt zo naar je favoriete concert of voetbalwedstrijd. Zin in een goede film? Pathe arena ligt ook op loopafstand. Er zijn volop winkels en restaurants te vinden bij de Amsterdamse poort. Tevens zijn er veel grote bedrijven gevestigd zoals de ING.

Mocht je lekker willen wandelen dan kan dat in het Nelson Mandela park of bij de Gaasperplas. Er zijn prachtige fietsroutes langs de Amstel en 't Gein richting Abcoude en Weesp.

De bereikbaarheid is uitstekend met in de nabije omgeving diverse uitvalswegen naar de snelwegen (A1, A2, A9 en A10). Naast metrostation Venserpolder op 5 minuten loopafstand liggen ook metro- en treinstation Bijlmer ArenA, Strandvliet en Duivendrecht op korte afstand van de woning. Met de trein ben je binnen circa 15 minuten op Schiphol, Utrecht of Amsterdam Centraal. Ideaal!

Tevens is er voldoende parkeergelegenheid voor de deur en kunnen er 2 vergunningen bij de gemeente zonder wachttijd worden aangevraagd.

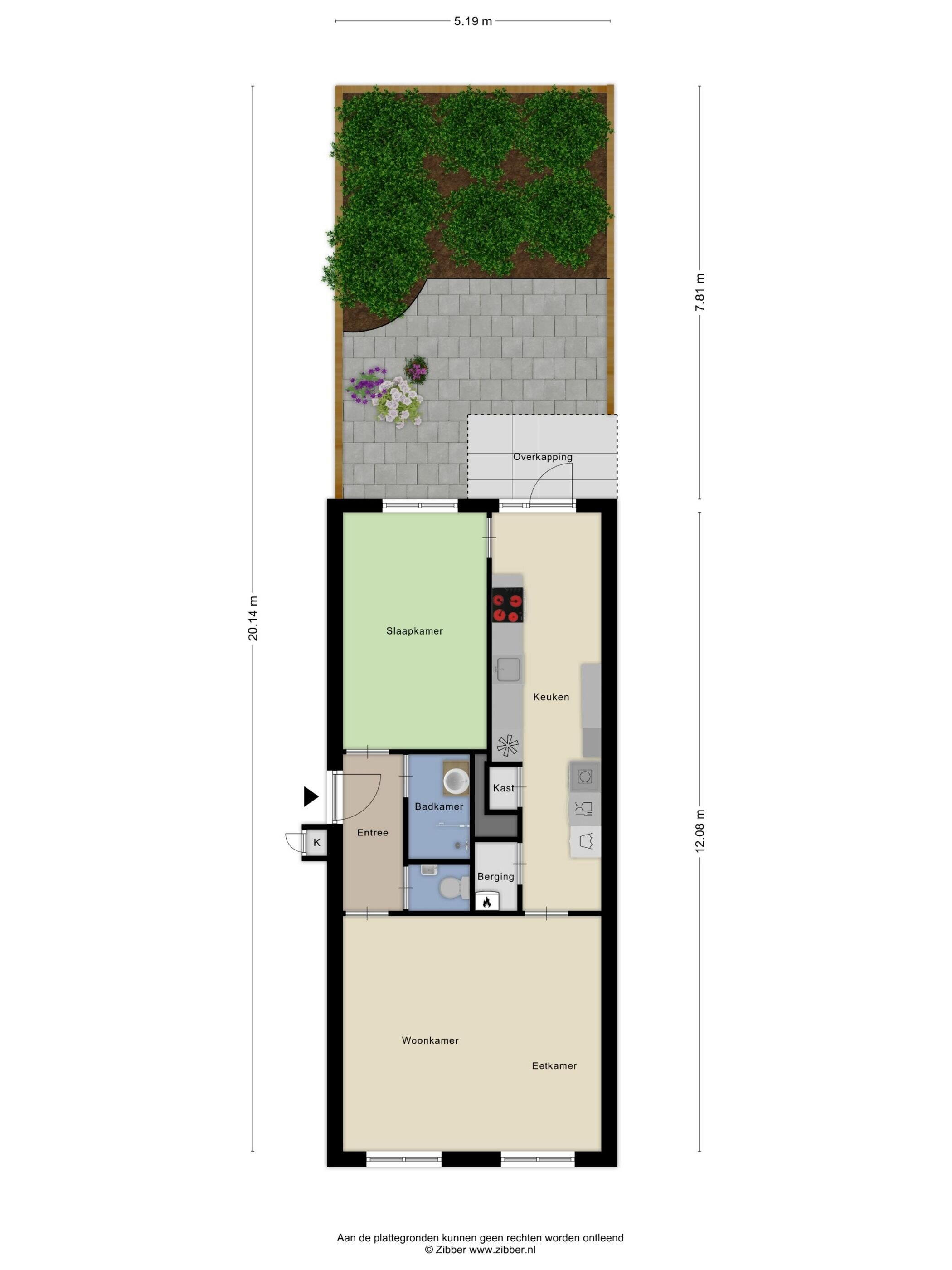
Indeling
Via centrale ingang kom je bij de entree van woning. Je komt binnen in de hal, deze biedt toegang tot de ruime en lichte woonkamer aan de voorzijde van de woning.

Via de keuken kom je in de tuin. Hier is een heerlijk terras van maar liefs ca 40 vierkante meter, waar je tot in de avond kan genieten van het zonnetje.

Verder is er een handige berging en een kast waar de cv ketel is gesitueerd. Deze HR ketel is recent vernieuwd.

Voor de mensen die graag 2 slaapkamers willen. Het is mogelijk om van de keukenruimte nog een slaapkamer te maken. Dan zou de keuken richting de woonkamer geplaatst moeten worden.

Aan de achterzijde ligt de goed bemeten tuingerichte slaapkamer.

De badkamer is voorzien van douche en wastafel. Toiletruimte is separaat.

Verder is er nog een individuele berging extern van de woning.

Tuin
Tuin gelegen op het westen (vanaf de middag tot in de avond zon). Afmeting: ca 5.20m breed en ca 7.80m diep.

Bijzonderheden
- Erfpachtcanon afgekocht t/m 30-11-2034
- Ca 60 m2 woonoppervlakte
- CV-ketel (Intergas, 2024, eigendom)
- Servicekosten bedragen €154,54 per maand (gezonde vve).
- Niet-zelfbewoningsclausule is van toepassing
- Parkeervergunning: vergunningsgebied is Zuidoost 2 Venserpolder West. Er is op dit moment geen wachtlijst.
Een parkeervergunning voor bewoners kost € 38,60 per 6 maanden. De eerste vergunningsperiode kan korter of langer zijn dan 6 maanden. De kosten kunnen daardoor afwijken. Een tweede parkeervergunning kost € 96,49 per 6 maanden.
- Energielabel B
- Berging extern

VZmakelaars offers this move-in ready ground floor apartment (approx. 60m²) with a garden (approx. 40m²) facing the sunny west! Centrally located in the Venserpolder near the metro, you can be in the center of Amsterdam in 15 minutes!

* Energy label B!
* Tennis court in the courtyard
* Close to the metro

Can you picture yourself relaxing in the sunshine in your own garden? Then come take a look at this well-maintained ground floor apartment.

For the sports enthusiasts, there's a nice extra: a tennis court in the courtyard—how luxurious is that!

The location is ideal. It's close to the Arena and the Ziggo Dome. You can easily walk to your favorite concert or football match. Fancy a good movie? Pathé Arena is also within walking distance. There are plenty of shops and restaurants at the Amsterdamse Poort. Many large companies, such as ING, are also located there.

If you'd like to enjoy a nice walk, you can do so in Nelson Mandela Park or at the Gaasperplas lake. There are beautiful cycling routes along the Amstel and 't Gein rivers towards Abcoude and Weesp.

Accessibility is excellent, with several highways (A1, A2, A9, and A10) nearby. Besides the Venserpolder metro station, a 5-minute walk away, the Bijlmer ArenA, Strandvliet, and Duivendrecht metro and train stations are also close by. By train, you can reach Schiphol Airport, Utrecht, or Amsterdam Central Station in about 15 minutes. Ideal!

There is also ample parking right outside the door, and two permits can be requested from the municipality without a waiting list.

Lay-out:

You enter the house through a central entrance. You enter the hall, which provides access to the spacious and bright living room at the front of the house.

The kitchen leads to the garden. Here you'll find a lovely terrace of approximately 40 square meters, where you can enjoy the sun until the evening.

There is also a handy storage room and a cupboard housing the central heating boiler. This high-efficiency boiler was recently replaced.

For those who would like two bedrooms, it is possible to convert the kitchen into another bedroom. In that case, the kitchen would have to be positioned towards the living room.

At the rear is the well-sized garden-facing bedroom.

The bathroom has a shower and sink. The toilet is separate.

There is also a separate storage room external to the house.

Particularities:

- Ground rent paid off until November 30, 2034
- Approximately 60 m² living space
- Central heating boiler (Intergas, 2024, owned)
- Service charges are €154.54 per month (healthy homeowners' association).
- Non-owner-occupied property clause applies
- Parking permit: permit area is Zuidoost 2 Venserpolder West. There is currently no waiting list.
A resident parking permit costs €38.60 per 6 months. The first permit period may be shorter or longer than 6 months. Costs may therefore vary. A second parking permit costs €96.49 per 6 months.
- Energy label B
- External storage

Plattegronden

Overdracht

Vraagprijs
€ 325.000 k.k.
Status
Verkocht
Bijdrage VvE
€ 154,54 per maand

Bouw

Object type
Benedenwoning (appartement)
Soort bouw
Bestaande bouw
Bouwjaar
1984

Oppervlakte en inhoud

Woonoppervlakte
59 m²
Inhoud
193 m³
Externe bergruimte
5 m²
Gebouwgeb. buitenruimte
5 m²

Indeling

Aantal kamers
2 kamers (1 slaapkamer)
Aantal badkamers
1 badkamer en 1 apart toilet
Aantal woonlagen
1 woonlaag
Gelegen op
Begane grond

Energie

Energielabel
B
Energielabel registratie
06-06-2025
Isolatie
Grotendeels dubbelglas
Verwarming
Cv-ketel
Warm water
Cv-ketel
Cv ketel
Intergas (gas gestookt uit 2024, eigendom)

Buitenruimte

Tuin
Achtertuin
Afmetingen achtertuin
41 m² (7,80 meter diep en 5,20 meter breed)
ligging tuin
Gelegen op het westen en

Parkeergelegenheid

Soort parkeergelegenheid
Betaald parkeren en parkeervergunningen

VvE checklist

Inschrijving KvK
Ja
Jaarlijkse vergadering
Ja
Periodieke bijdrage
Ja (€ 154,54 per maand)
Reservefonds aanwezig
Ja
Onderhoudsplan
Ja
Opstalverzekering
Ja

Energieverbruik in Amsterdam

Energielabel deze woning

Energielabel B

Publicatie energielabel: 06-06-2025

Stroomverbruik per jaar

1960 kWh

(Gemiddelde appartement in Amsterdam)

Gasverbruik per jaar

730 m³

(Gemiddelde appartement in Amsterdam)

* Cijfers zijn afkomstig van het CBS en bedoeld als indicatie en kunnen verschillen voor deze woning

Indicatie hypotheeklasten

Eigen inleg:
Spaargeld / overwaarde

Rente:
Laagste 10-jaars rente

Laagste 10-jaars rente

2,76% - Centraal Beheer Groen... - NHG


2,98% - Centraal Beheer Groen... - 80%

Laagste 20-jaars rente

3,19% - Centraal Beheer Groen... - NHG


3,31% - Centraal Beheer Groen... - 80%

Laagste 30-jaars rente

3,34% - Centraal Beheer Groen... - NHG


3,47% - Centraal Beheer Groen... - 80%


Hypotheek:

Bruto maandlasten: € 0 p/m

Netto maandlasten: € 0 p/m

Hoe berekenen we dit?

Het rentepercentage is gebaseerd op de laagste 10-jaars vaste rente voor één hypotheekdeel. De vermelde rente (2.76% met NHG) is gecontroleerd op 26-08-2025. Deze berekening is gebaseerd op een annuïteitenhypotheek die volledig wordt afgelost, waarbij de maandlasten gedurende de gehele looptijd gelijk blijven. De werkelijke rente en netto maandlasten kunnen variëren, afhankelijk van uw persoonlijke situatie en de hypotheekverstrekker. Raadpleeg een financieel adviseur voor een nauwkeurige berekening en advies. Aan deze berekening kunnen geen rechten worden ontleend; het dient enkel als indicatie.

Documentatie

Kadastrale kaart

Leefomgeving

WOZ waarderapport

BAG uittreksel

Plattegronden PDF

Pip-orientatie-ew806-726

Afschrift-openbaar-register-hyp4-dl-71533-nr-67

Eigendomsinformatie-weesperkarspel-a-1932-a29

Hhr-vastgesteld-21-11-2018

Jaarverslag-2024

Notulen-8-5-2024

Notulen-15-5-2025

Onderzoek-verduurzaming

Splitingsakte

Splitstingstekening

Energielabel-b

Erfpachtgegevens

Meetrapport-a-1567692-20250718184206

Zonnegrenzen bekijken

Op de kaart

Inwoners in Amsterdam

Cijfers voor postcodegebied 1102

Totaal aantal inwoners
24935 inwoners
Mannen
51%
Vrouwen
49%

Inwoners in Amsterdam

Cijfers voor postcodegebied 1102

tot 15 jaar
15%
15 tot 25 jaar
20%
25 tot 35 jaar
33%
45 tot 65 jaar
24%
65 en ouder
8%

Huishoudens in Amsterdam

Cijfers voor postcodegebied 1102

Eenpersoons zonder kinderen
64%
Meerpersoons zonder kinderen
11%
Huishoudens zonder kinderen
75%

Huishoudens in Amsterdam

Cijfers voor postcodegebied 1102

Huishoudens met één kind
15%
Huishoudens met meerdere kinderen
10%
Huishoudens met kinderen
25%

Woningen in Amsterdam

Cijfers voor postcodegebied 1102

Woningen voor 1945
2%
Woningen tussen 1945 en 1965
1%
Woningen tussen 1965 en 1975
20%
Woningen tussen 1975 en 1985
36%
Woningen tussen 1985 en 1995
12%

Woningen in Amsterdam

Cijfers voor postcodegebied 1102

Woningen tussen 1995 en 2005
8%
Woningen tussen 2005 en 2015
14%
Woningen na 2015
9%
Huurwoningen
80%
Koopwoningen
20%

Overige in Amsterdam

Cijfers voor postcodegebied 1102

Gemiddelde WOZ waarde
€ 198.000,-
Personen onder de 65 met uitkering
14%

Overige in Amsterdam

Cijfers voor postcodegebied 1102

Adressen per km²
3351
Stedelijkheid (schaal 1 op 5)
100%
Postcode kaart 1102 Gemeente kaart amsterdam

Korte feiten over Amsterdam

Amsterdam is de hoofdstad van Nederland. De stad, in het Amsterdams ook Mokum genoemd (afkomstig uit het Jiddisch), ligt in de provincie Noord-Holland, aan het IJ, het Noordzeekanaal en de monding van de Amstel. De stad ligt in de gelijknamige gemeente Amsterdam en heeft 873.338 inwoners (1 januari 2021), Groot-Amsterdam telt 1.459.402 inwoners.

Indien u vragen heeft of u wilt een bezichtiging inplannen, dan kunt u gebruik maken van het formulier hiernaast. Er zal daarna op korte termijn contact met u worden opgenomen.

Gooise Kant 336

1104 MM, Amsterdam

+316 1416 6980 info@vzmakelaars.nl www.vzmakelaars.nl

VZ Makelaardij & Taxaties

Welkom bij VZ Makelaardij & Taxaties – jouw partner voor vastgoed in Amsterdam. Gevestigd aan de Gooise Kant 336, onderscheiden wij ons met een uitstekende klantbeoordeling van 9,2 en maar liefst 1440 gerealiseerde vastgoedtransacties. Ons team staat klaar om jouw woonwensen te vervullen, of je nu je woning wilt verkopen, laten taxeren of op zoek bent naar een nieuwe plek.

Bij ons draait alles om persoonlijke service. Heldere communicatie en toegankelijkheid vormen de kern van onze aanpak. Dankzij onze 24/7 beschikbaarheid via WhatsApp ben je altijd verzekerd van snelle antwoorden op je vragen. We bieden een breed scala aan diensten, waaronder verkoop, verhuur en taxaties, waarbij we begrijpen dat elke klant unieke wensen heeft.

Kies voor VZ Makelaardij & Taxaties en ervaar de expertise, professionaliteit en toewijding van ons team. Wij staan te popelen om jou te ondersteunen bij al je vastgoedvraagstukken!

VZ Makelaardij & Taxaties
Reviews VZ Makelaardij & Taxaties

Dantestraat 276, Amsterdam

€ 325.000 k.k. - Verkocht

Helaas, deze woning is verkocht!

Net te laat, deze woning is al verkocht. Laat een zoekopdracht bij ons achter zodat wij u direct kunnen helpen wanneer er nieuw aanbod beschikbaar komt.